Compartir

En el marco del Programa de Emergencia de Infraestructura Municipal de la Provincia de Buenos Aires (PREIMBA), el intendente Miguel Fernández participó ayer (lunes) vía Zoom del acto en el cual el gobernador Axel Kicillof, acompañado por funcionarios bonaerenses, presentó 94 convenios para la realización de obras en 75 distritos, entre ellos Trenque Lauquen, donde se ejecutará el nuevo edificio del Pequeño Hogar en la Ampliación Urbana, por un monto de 32.126.250 pesos.

Junto al Gobernador bonaerense estuvieron el jefe de Gabinete, Carlos Bianco, y los ministros del Interior, Eduardo de Pedro; Infraestructura y Servicios Públicos, Agustín Simone; y de Desarrollo de la Comunidad, Andrés Larroque; e intendentes.

En su Sesión Ordinaria del viernes pasado el Honorable Concejo Deliberante (HCD) de Trenque Lauquen había aprobado el convenio correspondiente.

El PREIMBA se constituyó a partir de la Ley n° 27.561, que instruye al Gobierno Nacional para otorgar 5 mil millones de pesos con el objeto de garantizar el mantenimiento y la construcción de nueva infraestructura municipal en ámbitos urbanos, suburbanos y rurales de la Provincia. Las obras se reparten entre los 135 municipio de acuerdo a un coeficiente determinado denominado CUD.

 

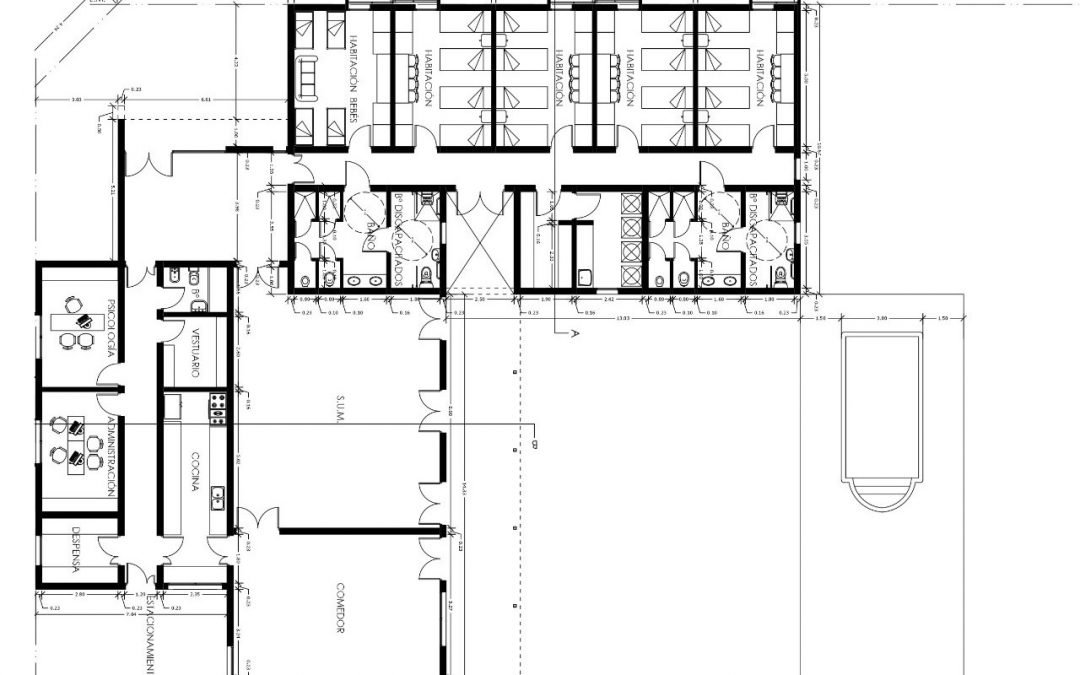
. LAS COMODIDADES DEL NUEVO EDIFICIO

La obra del nuevo Pequeño Hogar, que se llevará a cabo en la Ampliación Urbana y demandará una inversión de 32.126.250 pesos, será una construcción de unos 371,2 mts2 cubiertos y unos 23,5 mts2 semicubiertos de galerías que desbordan en un amplio patio y espacio verde, y está proyectada para tener futuras ampliaciones en el caso de que las necesidades así lo requieran, y por esta razón es un edificio flexible pensado para

generar un ámbito de contención donde las y los menores que allí residan puedan desarrollar distintas actividades relacionadas a la atención, contención y educación.

El proyecto plantea un lugar central, con el Salón de Usos Múltiples (SUM), y dos alas de funciones: Una con las habitaciones -cinco (5)- y sanitarios, dividiendo con una circulación las de varones y mujeres, y en la otra se plantea el área administrativa y de servicios de cocina y lavadero.

El desarrollo genera un sistema de plazas y patios y se articula en cinco áreas diferentes, teniendo como premisa posibilidades concretas de futura ampliación.

. Área Administrativa: Acceso, Oficina Administrativa, Gabinete y Baño para el personal.

  • Área de Habitaciones: Lugar para dormir, Lugar para actividades escolares y Sanitarios con baño para personas con discapacidad.
  • Salón de Usos Múltiples (SUM): Estar, Sala de Juegos y Actividades Escolares.
  • Comedor
  • Apoyo de Servicios: Cocina y Lavadero.
  • Áreas de Esparcimiento: Plaza pública con juegos infantiles y Patio expansión del SUM con pileta de natación.

El Área Administrativa tendrá un Despacho para el Coordinador, más un trabajador administrativo, y un Consultorio para profesionales de Psicología de atención a los niños, mientras que el sector de Habitaciones estará conformado por cuatro unidades comunes, de cuatro camas cada una, y una quinta para bebés con cuatro cunas, con equipamientos de placard y muebles de apoyo donde realizar tareas escolares.

El SUM será un área flexible que funcione como Estar, Comedor y Sala de Juegos, donde además se podrán plantear sectores para brindar Apoyo Escolar y los Servicios contarán Lavadero, que incluirá, zona de planchado y guardado; Cocina de abastecimiento al comedor y sitio de Depósito.

Los sectores verdes se constituirán como dos patios de expansión para el edificio, uno público, con juegos infantiles, y otro privado, con sector de pileta.

El Pequeño Hogar recibe a menores de hasta 13 años de edad, hasta su egreso determinado por la autoridad correspondiente, y allí se trata de resguardar todos aquellos derechos vulnerados de los niños y niñas, como así también contemplar los casos donde no cuenten con referentes familiares.